関東鉄道常総線「稲戸井駅」徒歩7分☻
「ゆめみ野駅」徒歩12分☻
二駅利用可能な物件です!!
南道路に面していますので、陽当たり抜群の整形地です!!
建築条件付土地3区画と建売住宅が2棟(予定)の販売を開始致しました。

区画図

自由設計(間取り変更可能です)
お客様が納得するまでご説明又はご提案させて頂きます。
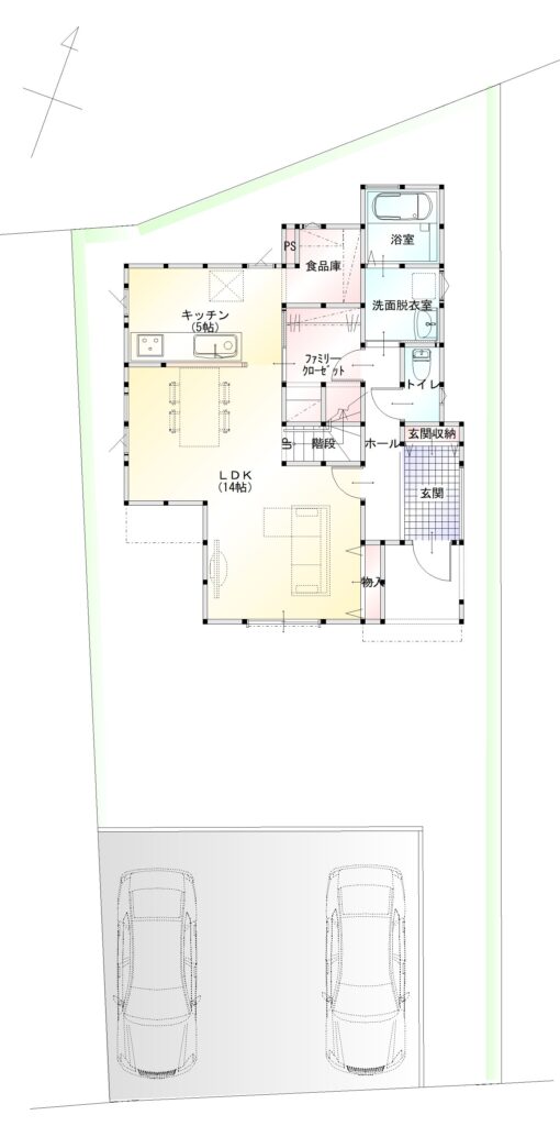
5号地モデル棟の参考プランになります
まだ、建築前ですので間取り変更も可能になりますので、お気軽にお問合せ下さい
-510x1024.jpg)
-752x1024.jpg)
🍨平日の見学希望にも随時対応致しますので、お気軽にお問合せ下さい🍨
🍨記載物件の他にもご希望条件を教えて頂ければご紹介致しますので、お気軽にお問合せ下さい🍨
電話番号:0297-74-9393
メールアドレス:toride@sintosin.jp
